IKKO千種ターミナルビル 2A-B
-
アクセス
- 中央本線 千種駅 から 徒歩1分
-
賃料
- 40万1700 円
-
管理費等
- 140,595 円
-
礼金
- -
-
敷金
- 12ヶ月
-
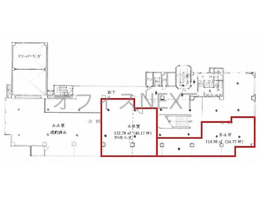
専有面積
- 132.78m 2 ( 40.16坪 )
-
築年月
- 1979年11月 ( 築46年 )
間取り図
詳細・設備・条件・取引について
基本
| 問い合わせ番号 | meiki_2_15724 | ||
|---|---|---|---|
| アクセス |
中央本線 千種駅
から 徒歩1分
名古屋市東山線 千種駅 から 徒歩1分 名古屋市東山線 今池駅 から 徒歩7分 |
種別 | 店舗事務所(一部) |
| 所在地 |
愛知県名古屋市千種区内山3丁目 25-6
|
学校区 | - |
| 問い合わせ番号 | meiki_2_15724 |
|---|---|
| アクセス |
中央本線 千種駅
から 徒歩1分
名古屋市東山線 千種駅 から 徒歩1分 名古屋市東山線 今池駅 から 徒歩7分 |
| 種別 | 店舗事務所(一部) |
| 所在地 |
愛知県名古屋市千種区内山3丁目 25-6
|
費用
| 賃料 | 40万1700円 | 管理・共益費 | 140,595円 |
|---|---|---|---|
| 礼金 | - | 敷金 | 12ヶ月 |
| 雑費 | - | 償却 | 退去時、 - |
| 家賃保証会社 | - | 保険料 | - |
| 契約期間 | - | 更新料 | - |
| 賃料 | 40万1700円 |
|---|---|
| 管理・共益費 | 140,595円 |
| 礼金 | - |
| 敷金 | 12ヶ月 |
| 償却 | 退去時、 - |
| 雑費 | - |
| 家賃保証会社 | - |
| 保険料 | - |
| 契約期間 | - |
| 更新料 | - |
建物
| 間取り | 専有面積 | 132.78m 2 ( 40.16坪 ) | |
|---|---|---|---|
| 構造 | 鉄骨鉄筋コンクリート造 | バルコニー面積 | - |
| 所在階 / 階数 | 2階 / 10階建 | 完成年月 | 1979年11月 ( 築46年 ) |
| 管理 | - | 総戸数 | - |
| 駐車場 | 敷地内 ( 月額 25,000円 ) | バイク置場 | - |
| 駐輪場 | - | ||
| リフォーム | - | リノベーション | - |
| こだわり条件 |
|
||
| 設備・条件 | 本物件は、賃料・共益費の他に別途消費税が必要になります。 スライド償却:3年未満30%、5年未満20%、5年以上なし |
||
| 間取り | |||
|---|---|---|---|
| 専有面積 | 132.78m 2 ( 40.16坪 ) | ||
| 構造 | 鉄骨鉄筋コンクリート造 | ||
| バルコニー面積 | - | ||
| 所在階 / 階数 | 2階 / 10階建 | ||
| 完成年月 | 1979年11月 ( 築46年 ) | ||
| 管理 | - | ||
| 総戸数 | - | ||
| 駐車場 | 敷地内 ( 月額 25,000円 ) | ||
| バイク置場 | - | ||
| 駐輪場 | - | ||
| リフォーム | - | ||
| リノベーション | - | ||
| こだわり条件 | 即入居可/エレベーター/エアコン/男女別トイレ/大通沿い | ||
| 設備・条件 | 本物件は、賃料・共益費の他に別途消費税が必要になります。 スライド償却:3年未満30%、5年未満20%、5年以上なし |
||
その他
| 現況 ・ 入居 | 空室 ・ 即時 | 取引態様 | 仲介 |
|---|---|---|---|
| 次回更新日 | 2025/11/30 | 担当者 | - |
| 現況 ・ 入居 | 空室 ・ 即時 |
|---|---|
| 取引態様 | 仲介 |
| 次回更新日 | 2025/11/30 |
| 担当者 | - |
IKKO千種ターミナルビルの詳しい情報やお問い合わせはこちら!
お問い合わせ先:株式会社ハインズ オフィスNEXT
免許番号:愛知県知事(1)第25711号
営業時間:9:00~18:00
TEL:0120-24-5957
この建物の空室一覧
| 所在階 | 専有面積 | 坪 | 賃料 | 管理・共益費 | 候補に追加 | 詳細 |
|---|---|---|---|---|---|---|
| 1階 | 36.59m² | 11.06坪 | 14万3910円 | 44,280円 |
|
|
| 3階 | 69.75m² | 21.09坪 | 21万900円 | 73,815円 |
|
こちらの物件もあります。
10万 円
愛知県名古屋市中区千代田
鶴舞駅から徒歩 5分
116万2380 円
愛知県名古屋市中村区名駅南
伏見駅から徒歩 8分
65万 円
愛知県名古屋市西区上堀越町
下小田井駅から徒歩 15分
12万5000 円
愛知県名古屋市北区喜惣治
比良駅から徒歩 13分
相談
愛知県豊橋市大手町
札木駅から徒歩 3分
37万560 円
愛知県名古屋市中区栄
伏見駅から徒歩 5分
23万 円
愛知県名古屋市中村区名駅南
近鉄名古屋駅から徒歩 8分
9万 円
愛知県名古屋市東区泉
久屋大通駅から徒歩 3分
74万9000 円
愛知県名古屋市中村区椿町
名古屋駅から徒歩 3分
5万 円
愛知県名古屋市南区呼続
呼続駅から徒歩 3分
11万5000 円
愛知県名古屋市千種区東山通
東山公園駅から徒歩 1分
8万 円
愛知県名古屋市名東区上菅
上社駅から徒歩 12分
相談
愛知県名古屋市中区錦
国際センター駅から徒歩 5分
相談
愛知県名古屋市中区新栄
新栄町駅から徒歩 3分
相談
愛知県名古屋市中区丸の内
丸の内駅から徒歩 4分




是非見て頂きたい人気物件!
今すぐ内覧手配可能です。
現地待ち合わせも対応致します。
お気軽に0120-245-957までお電話くださいませ。