中区松原1丁目【SOU大須】のご紹介
皆様こんにちは!
長~いお盆休暇も明けました。
今日から仕事初めという方も多いかと思いますが
私も気持ちを仕事モードに切り替えて
バシッっとやっていきたいと思います!!
さて、本日は中区松原1丁目にございます新築テナントビルのご紹介です。
地下鉄鶴舞線「大須観音駅」徒歩4分、伏見通沿いにございます
2022年3月竣工の築浅マンション物件の1階テナント情報です。
前テナントが内装をかっこよく仕上げられていて、
このまま居抜き状態でご使用いただくことが可能です!
まだまだ新しいエアコンや
オシャレな洗面設備
トイレもキレイな状態で引き継ぎ可能です!
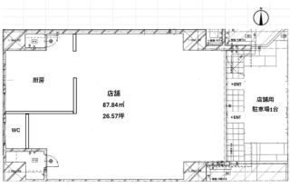
厨房スペースも残っています。
カフェ等の軽飲食までは相談可能となっておりますので
初期投資を抑えたい皆様にはとっても嬉しい状態でお引き継ぎいただけます!
テナント前面には駐車スペース1台分が賃料込みです。
気になったそこのあなた!
まずはオフィスNEXTまでお問合せ下さい。
物件名:SOU大須 1階
所在地:愛知県名古屋市中区松原1丁目14-11-1
募集面積:26.57坪 ( 87.84㎡ )
構造:鉄筋コンクリート造 地上14階建
完成年月:2022年3月
******************************************************
【SOU大須】以外にも、事務所テナント・貸店舗専門サイト「オフィスNEXT」には
おすすめ物件を多数掲載しておりますので、あたなに合ったオフィスや店舗をお探しいただけます。
是非一度、検索画面から物件を探してみてください!
*******************





