御器所2番出口目の前!【旧SMBC御器所支店ビル】のご紹介♪
皆さんこんにちは。
スタッフAです。
本日はこちらの物件をご紹介させていただきます。
【旧SMBC御器所支店ビル】
なんと地下鉄御器所駅2番出口の真横にある超好立地の物件です!
今なら1階~3階まで全てのフロアがそれぞれご紹介可能です。
全面ガラス張りのおしゃれで綺麗な外観です。
敷地内に広々とした駐車場もございます。
1~3階全てスケルトンなので自由に内装を作っていただけます。
こちらは1階のお写真です。
2階、3階はこのようになっています。
ガラス張りなので日光がしっかり入り、とても明るい室内です。
専有面積もそれぞれ約120~130坪と広々使っていただけます。
もうひとつおすすめポイントとして
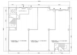
1階と3階は約30~40坪程度に分割してご入居いただけます!
1階はこのように区切ることができます。
大通り沿いでガラス張りなので歩行者や車内から室内が見え、集客力が高い区画です。
3階は長方形に区切り、事務所仕様にすることが可能です。
近くにコンビニが複数と、カフェやスーパー等もございますので仕事帰りにありがたいですね。
駅近の店舗・オフィスをお探しの方、この機会に是非一度ご検討ください。
分割案も含めたそれぞれの区画の詳しい情報は下記の関連物件情報からご覧くださいませ。
【物件概要】
物件名称:旧SMBC御器所支店ビル 1階
物件所在地:名古屋市昭和区御器所通3丁目8-1
URL:こちらをクリック!
竣工年月:2009年8月
アクセス:地下鉄桜通線・鶴舞線 「御器所駅」 徒歩1分
::::::::::::::::::::::::::::::::::::::::::::::::::::::::::::::::::::::::::::::::::::::::::
オフィスNEXTではお客様に合ったオフィスや店舗を多数掲載しております。
是非一度、検索画面をクリックしてオフィスや店舗を探してみて下さいね。
オフィスNEXT Facebookページも宜しくお願い致します。
::::::::::::::::::::::::::::::::::::::::::::::::::::::::::::::::::::::::::::::::::::::::::





